松田町松田惣領第25 1号棟 神奈川県足柄上郡松田町松田惣領 |2,180万円の新築一戸建て|株式会社ダイトー建設不動産

menu

新築一戸建て

松田町松田惣領第25 1号棟NEW

お気に入り
価格 2,180万円 ローンシミュレーション
所在地 神奈川県足柄上郡松田町松田惣領
この地域周辺の物件を見る
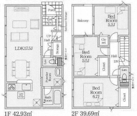
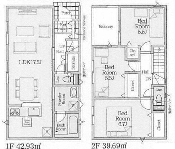
土地面積 123.19m² (37.26坪) 建物面積 82.62u
築年月 2026年2月築 間取り 3LDK (LDK17.5/洋室6.7/洋室5.5/洋室5.5)
交通
小田急小田原線 新松田 徒歩18分
JR御殿場線 松田 徒歩19分
ここがおすすめ

新松田駅徒歩18分♪
全居室収納付き3LDK♪
2F全居室2面採光♪
ユニットバス、換気暖房乾燥機付き♪
ルーフバルコニー♪
駐車スペース2台♪

お問い合わせ、資料請求、見学のお申し込みはこちらから

電話をかける(携帯・PHS可)
0120-76-0338
「ホームページを見た」とお伝え下さい。

お問い合わせ番号をお伝えください
RHS-B00162-001319

内見予約
お問合せ

セールスポイント

特徴
  • 浴室乾燥機
セールスコメント 新松田駅徒歩18分♪
全居室収納付き3LDK、季節物その他の収納に便利♪
2F全居室2面採光、陽当たり通風良好♪
ユニットバス、換気暖房乾燥機付き♪
会話が弾むカウンターキッチン♪
急な雨でも安心、ルーフバルコニー♪
駐車スペース2台♪
公園至近、緑豊かな住宅街、子育てに優しい住環境♪

*営業時間【9:30〜20:30】 年中無休(年末年始除く)
*お仕事のお休みが平日、土日祝日、不定休でも、ご希望の日時にてご案内致します
*お車でお越しの場合、当社駐車場17台分完備しております 安心してお越しください
*電車でお越しの場合、小田急線/栢山駅徒歩4分またはスタッフが送迎致します
*お電話でお問い合わせはTEL:0120-76-0338 (通話料無料)


備考 日影制限有/宅地造成工事規制区域/建築基準22条指定/道路斜線制限/隣地斜線制限

物件概要

採光面 南西 構造/階数 木造/地上2階建
建ぺい率 60(%) 容積率 182(%)
駐車場 現況/引渡し 空家/相談
土地権利 所有権 私道負担面積 -

接道状況 接道: 北西 9.3m 公道 道路幅: 4.5m 用途地域
第一種住居地域
セットバック - 法令上の制限 日影制限有/宅地造成工事規制区域/建築基準22条指定/道路斜線制限/隣地斜線制限
地目 宅地 地勢
建築確認番号 都市計画 市街化区域
取引態様 仲介
情報更新日 2026年04月30日 次回更新日 2026年05月14日
※各種情報と差異がある場合は現況優先となります

学区情報

小学校区
()
中学校区
()
※物件情報の学区情報について
当サイト物件情報に記載されております通学区域(学区)情報は、国土数値情報ダウンロードサービスが提供する小学校区データ【2021年度】及び中学校区データ【2021年度】を元に加工したものですので、記載情報が現在の学区域と異なる場合がございます。
国土数値情報ダウンロードサービスのWEBサイト上で記述通り、データは必ずしも正確とは言えません。また、通学区域(学区)は毎年見直しの対象となりますので、そちらを踏まえ学区情報は参考としてご活用下さい。

お問い合わせ、資料請求、見学のお申し込みはこちらから

電話をかける(携帯・PHS可)
0120-76-0338
「ホームページを見た」とお伝え下さい。

お問い合わせ番号をお伝えください
RHS-B00162-001319

内見予約
お問合せ

この物件でローンシミュレーションする

価格 万円
年利率
ボーナス払い 返済年数
頭金 直接入力する 万円

毎月のご返済額

ボーナス(×年2回)

物件価格

2,180万円
※返済金額はあくまでも目安です。

こちらの物件は複数区画の分譲地・他にも販売中のマンションがあります。

足柄上郡松田町松田惣領
1980万円〜2680万円
  • こちらの物件を見たお客様はこんな物件もチェックしています。
  • お気に入り物件

電話をかける(携帯・PHS可)
0120-76-0338
「ホームページを見た」とお伝え下さい。

お問い合わせ番号をお伝えください
RHS-B00162-001319

内見予約
お問合せ

お問い合わせ

  1. 1
    内容入力
  2. 2
    内容確認
  3. 3
    完了
お問合せ内容必須
【備考欄】
詳細な見学ご希望時間、ご質問、ご希望条件などがございましたらお聞かせ下さい。
(2000文字以内)
お名前必須
メールアドレス必須
※ご記入いただいたメールアドレス宛てに、お問合せ内容の確認メールをお送りいたします。
※Yahoo!メールなどのフリーメールをご利用の場合、迷惑メールフォルダに入る場合があります。
 迷惑メールのフォルダ・設定等をご確認下さい。
電話番号必須
FAX(任意)
※ご入力いただいたお客さまの個人情報は、「個人情報の取扱いについて」に基づき適正に取り扱います。必ずお読みになり、同意の上お問い合わせください。

お気軽にお問い合わせください

0120-76-0338
物件番号 RHS-B00162-001319
※「ホームページを見た」
とお伝え下さい。

PAGE TOP